IN VENDITA

179.000 €

PUNTI CHIAVE:
  • 1 Camere
  • 1 Bagni
  • 50 m2
POSIZIONE:

via lincoln 46, Cinisello Balsamo

irresistbile bilocale dall’enorme potenziale!! un bijou
Descrizione

IRRESISTBILE BILOCALE DALL'ENORME POTENZIALE!! UN BIJOU
(Via Lincoln)

Ci troviamo in una delle zone più strategiche che beneficerà dell'arrivo della M5
(fermata "Lincoln" sotto casa) per dei più rapidi collegamenti tra Milano e Monza.
Qui, al nono piano di uno stabile ottimamente tenuto e dotato di ascensore,
vi presentiamo bellissimo bilocale appena ristrutturato in chiave moderna e pronto per essere abitato.

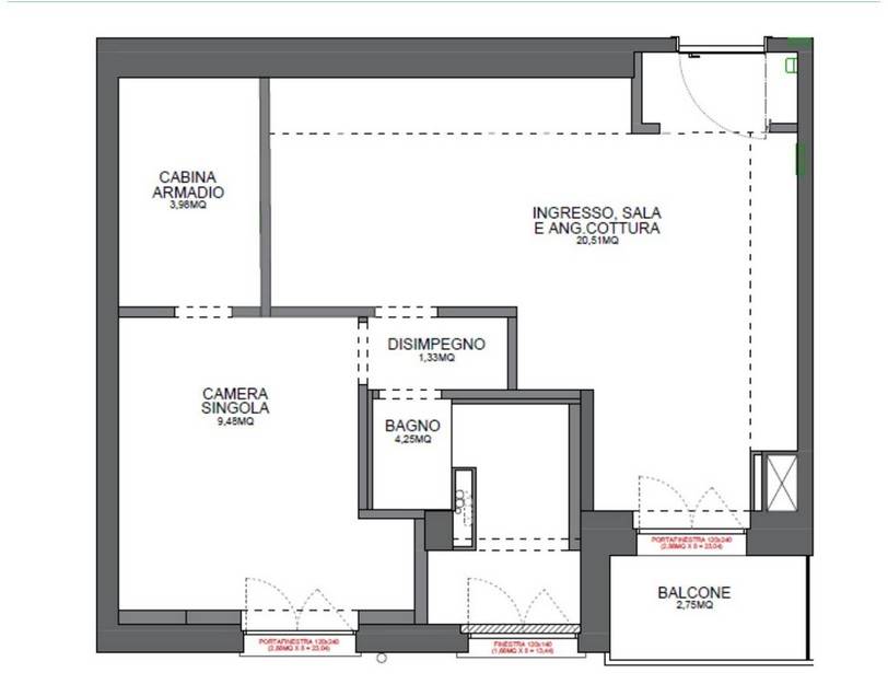
Internamente l'appartamento si compone di luminoso soggiorno con accesso al balcone ed elegante cucina a vista completa di tutti gli elettrodomestici, accogliente camera da letto matrimoniale dotata di comoda cabina armadio ed ulteriore accesso al balcone,
ed infine ampio bagno finestrato completo con doccia walk-in e lavanderia separata.

Ogni ambiente gode di numerosi plus che ne esaltano la bellezza ed il confort, come il meraviglioso parquet della pavimentazione, l'aria condizionata caldo/freddo interna, gli impianti e serramenti nuovi, le tapparelle elettrice, gli infissi e le finestre in PVC doppio vetro, le finiture di pregio in fase di completamento… e tanto altro da scoprire!! Persino la caldaia è stata appena cambiata!

Parliamo di un immobile semplicemente ideale non solo come soluzione abitativa personale, ma anche come investimento a lungo termine considerando la prossima vicinanza all'Università Bicocca ed i futuri scambi con le altre metropolitane già presenti.

NON ASPETTARE OLTRE!! COGLI L'ATTIMO E CONTATTACI PER ORGANIZZARE UNA VISITA

IL PRESENTE ANNUNCIO NON COSTITUISCE ELEMENTO CONTRATTUALE

Agenzia Immobiliare - Filiale di Milano, Via Pola n.15
Telefono: 02/84980808
E-Mail: milano@ital-home.il
Sul nostro sito: www.milanoital-home.it troverete innumerevoli offerte ed occasioni.
Venite a trovarci in agenzia senza impegno, i nostri orari sono i seguenti:
Dal Lunedì al Venerdì dalle 9.00 alle 19.00 e il sabato dalle 09.00 alle 12.30

Panoramica
  • Riferimento: BILO-LINCOLN
  • Camere: 1 Camere
  • Bagni: 1 Bagni
  • Superficie: 50 m2
  • Del: 1960
Dettagli
ID Interno:
BILO-LINCOLN
Camere:
1
Prezzo:
€ 179.000
Bagni:
1
Superficie:
50 m2
Costruzione:
1960
Tipo di Proprietà:
Appartamento
Piano:
Piano 9 di 10
Stato:
Ottimo
Riscaldamento:
Centralizzato
Caratteristiche
  • Ascensore
Ubicazione
(Ubicazione approsimativa)
Calcola il Mutuo
Rata Mensile: € 864,82
Il valore sopra riportato ha solo scopo indicativo ed è variabile in base al singolo Ente finanziatore ed al tasso indicato.
Contatta l'agenzia
avatar
Ital Home Milano
02 849.808.08
milano@ital-home.it
Perchè Scegliere Noi?
  • Acquisti in sicurezza
  • Miglior Prezzo Garantito
  • Consulenza personalizzata
  • Ascolto, dedizione, esperienza
Valuta la Tua Casa

Scopri il vero valore della tua casa o di quella che vuoi acquistare!

Inizia Valutazione
image
In base alla tua ricerca

Potrebbe interessarti

Appartamento a Milano
  • In Vendita
Appartamento

Milano

  • 4
  • 1
  • 95m2
avt
TRILO-ADRIANO
€ 285.000
Appartamento a Milano
  • In Vendita
Appartamento

Milano

  • 3
  • 1
  • 95m2
avt
TRILO-SOPERGA
€ 500.000
Loft/Open Space a Milano
  • In Vendita
Loft/Open Space

Milano

  • 2
  • 1
  • 48m2
avt
LOFT-MEUCCI
€ 265.000